Skip the navigation and jump to this page's content.

22912 Merlin Road Merlin, ON

$499,900
4 Beds
  1 Full
Virtual Tour

PROPERTY INFO

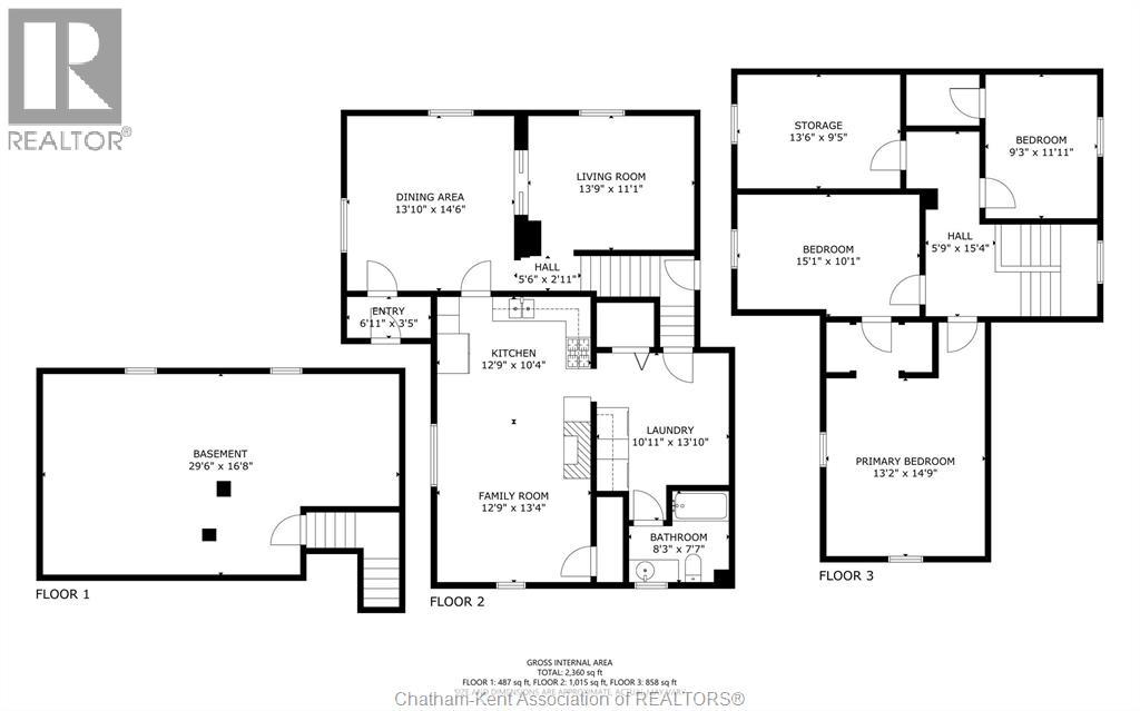
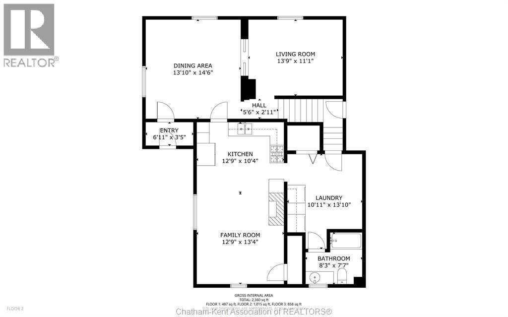
Full of warmth, character, and country charm, this solid double-brick farmhouse sits on just under an acre and offers space to grow and make it your own. With 4 bedrooms and 1 full bath, this home blends timeless features with practical everyday living. Inside, you’ll love the original character — tall baseboards, wainscotting, oversized windows, and bright, welcoming rooms throughout. The kitchen/living room is the true heart of the home, complete with a cozy gas fireplace that makes it the perfect place to gather. All bedrooms are generously sized with great closet space, and the primary features a cedar-lined walk-in closet with potential to create a ensuite bathroom if desired. An attached 1.5-car garage and abundant storage add to the home’s functionality. Key updates include furnace (2014), roof and windows (2005), and electrical and plumbing updates completed in the 1990s. If you’ve been dreaming of a charming country property with solid bones, space to breathe, and room to add your personal touch — this is your opportunity. (id:4555)

PROPERTY SPECS

Listing ID 26002417
Address 22912 Merlin ROAD
City Merlin, ON
Price $499,900
Bed / Bath 4 / 1 Full
Construction Brick
Flooring Carpeted, Cushion/Lino/Vinyl, Hardwood
Land Size 150 X 200 / 0.752 AC
Type House
Status For sale

EXTENDED FEATURES

Year Built 1890Appliances Dryer, Refrigerator, Stove, WasherFeatures Gravel DrivewayOwnership FreeholdFoundation BlockHeating Forced air, FurnaceHeating Fuel Natural gas Date Listed 2026-02-16 17:00:28
LISTING OFFICE:
Remax Preferred Realty Ltd., Anne Marie Authier


logo

REQUEST MORE INFORMATION

LET'S GET STARTED!

The best investment decisions start with the right team. Let's discuss your goals and how we can help make them a reality.

Contact Stake Realty Inc. today and stake your claim in the future of real estate prosperity.

Loading...